Rustico a Polignano a Mare, STRADA PROVINCIALE POLIGNANO-CASTELLANA G. N. 120
Polignano a Mare – Strada provinciale Polignano – Castellana G.Immersa…
€230,000
VENDI O RICERCA IL TUO IMMOBILE IN PUGLIA
Strada Comunale Parco Balistris, Polignano a Mare, Bari, Puglia, Italia
Vendita
€740,000
Polignano a Mare Strada Comunale Parco Balistris
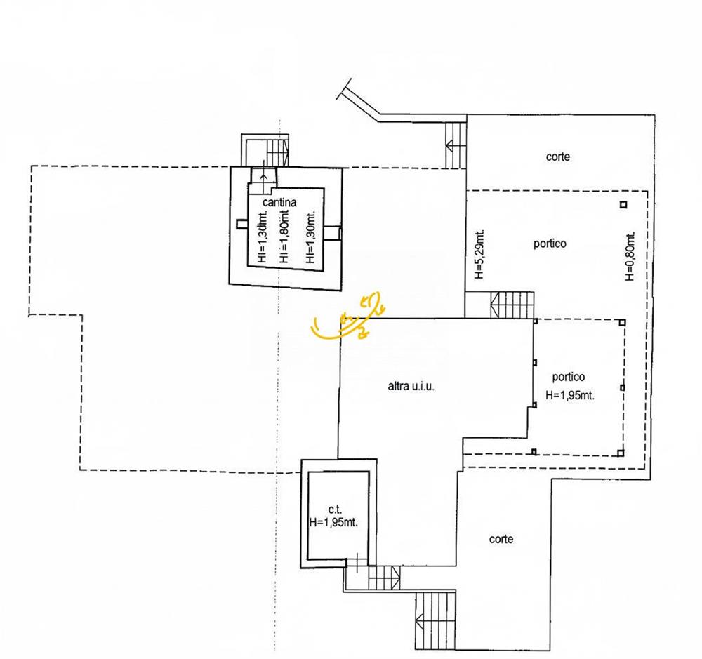
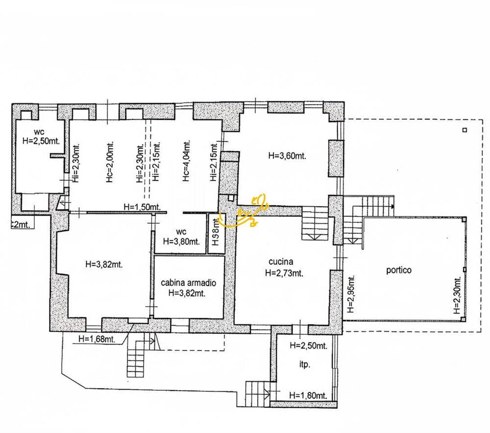
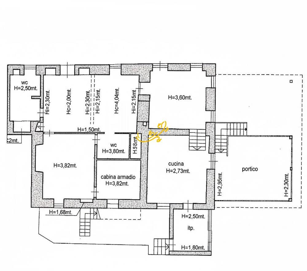
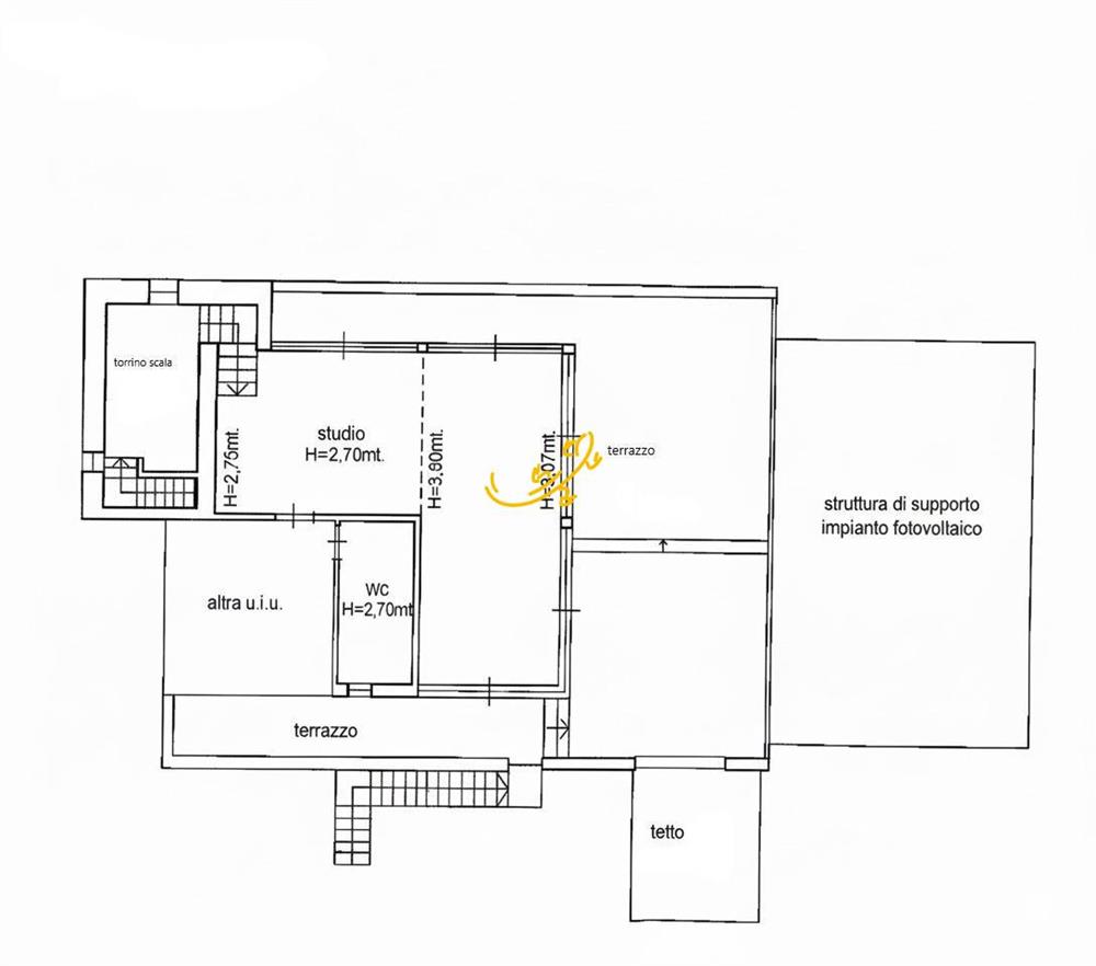
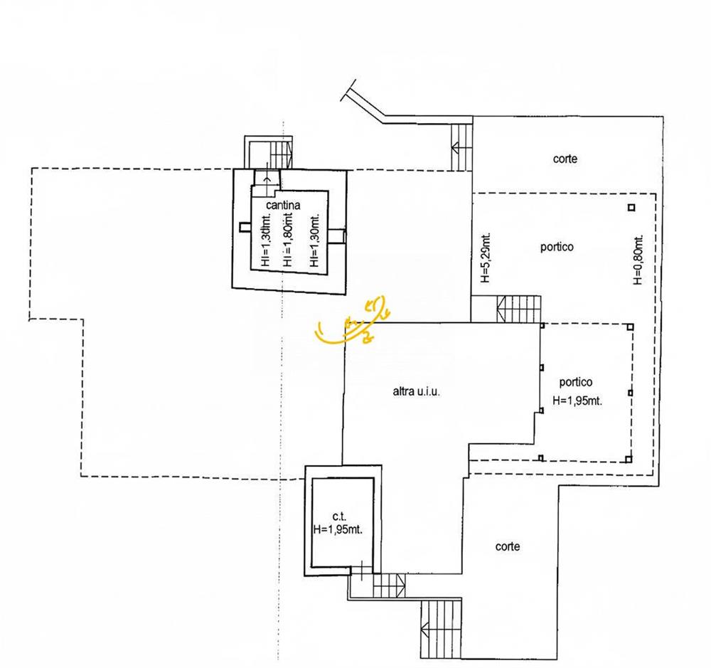
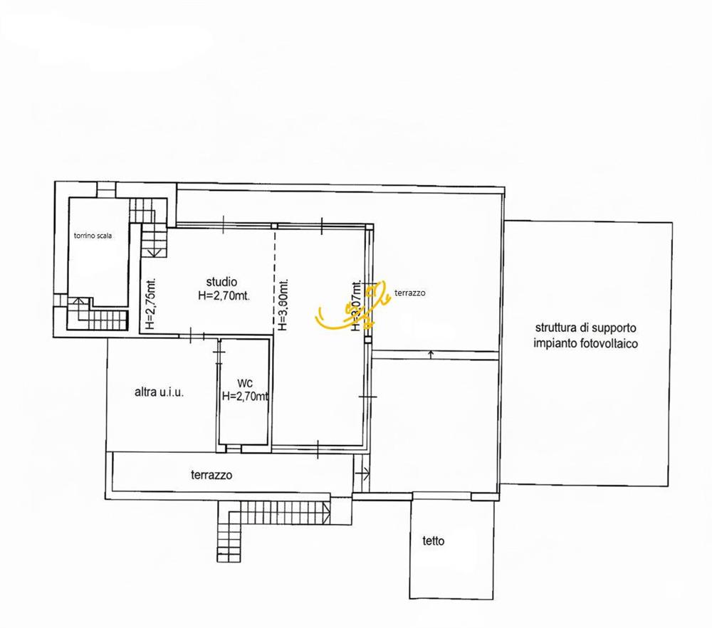
In posizione riservata e panoramica, proponiamo una proprietà indipendente realizzata in pietra e tufo. L’abitazione principale si apre su un ampio salone con camino bifacciale, collegato a un secondo living che condivide lo stesso elemento centrale, creando continuità e un’atmosfera accogliente. La zona notte comprende una camera matrimoniale con bagno en suite e cabina armadio di grandi dimensioni, oltre a un secondo bagno. La cucina, luminosa e funzionale, si apre su una veranda con affaccio sul giardino e sull’uliveto, con vista panoramica. Completa il piano un pratico vano lavanderia. Al piano inferiore è presente un appartamento interamente in pietra, attualmente ad uso deposito, composto da una camera matrimoniale, una seconda camera e un bagno. Dall’ingresso principale, una scala conduce al livello superiore dove si trova un ambiente oggi utilizzato come ufficio, completamente vetrato e dotato di balcone panoramico. A questo spazio si può accedere anche tramite una scala esterna. La distribuzione interna consente facilmente la trasformazione in un ulteriore appartamento indipendente, completo di camera con bagno en suite. La proprietà è dotata di impiantistica moderna orientata all’efficienza energetica, tra cui: impianto fotovoltaico da 16 kW con batteria di accumulo
riscaldamento a pavimento con pompa di calore, climatizzazione in tutti gli ambienti, impianto elettrico completo, fossa Imhoff, acqua sorgiva con possibilità di allaccio all’acquedotto
cisterna di raccolta. All’esterno, il terreno di circa 4.000 mq ospita circa 40 ulivi e diversi alberi da frutto. Il giardino include inoltre una veranda con pergola in legno. Completano la proprietà un ampio deposito esterno, area parcheggio con colonnina di ricarica elettrica e doppio ingresso con cancelli elettrici.
Interni: circa 300 mq
Terreno: circa 4.000 mq
Camere: 4
Bagni: 4
Polignano a Mare – Strada provinciale Polignano – Castellana G.Immersa…
€230,000
Monopoli – Contrada TavarelloProponiamo in vendita un caratteristico complesso di…
€90,000
Questo sito Web utilizza i cookie per migliorare la tua esperienza. Daremo per scontato che ti stia bene, ma puoi annullare l'iscrizione se lo desideri.
AccettaRifiutaImpostazioni
| Cookie | Durata | Descrizione |
|---|---|---|
| cookielawinfo-checkbox-necessary | 11 months | This cookie is set by GDPR Cookie Consent plugin. The cookies is used to store the user consent for the cookies in the category "Necessary". |
| cookielawinfo-checkbox-others | 11 months | This cookie is set by GDPR Cookie Consent plugin. The cookie is used to store the user consent for the cookies in the category "Other. |
| cookielawinfo-checkbox-performance | 11 months | This cookie is set by GDPR Cookie Consent plugin. The cookie is used to store the user consent for the cookies in the category "Performance". |