SELL OR SEARCH YOUR PROPERTY IN APULIA
Strada Comunale Parco Balistris, Polignano a Mare, Bari, Puglia, Italia
For Sale
€740,000
Polignano a Mare – Strada Comunale Parco Balistris
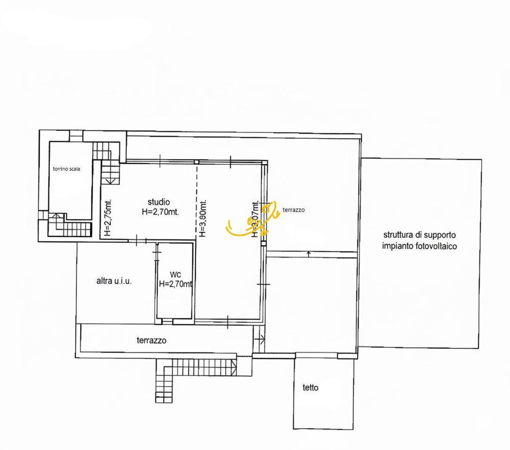
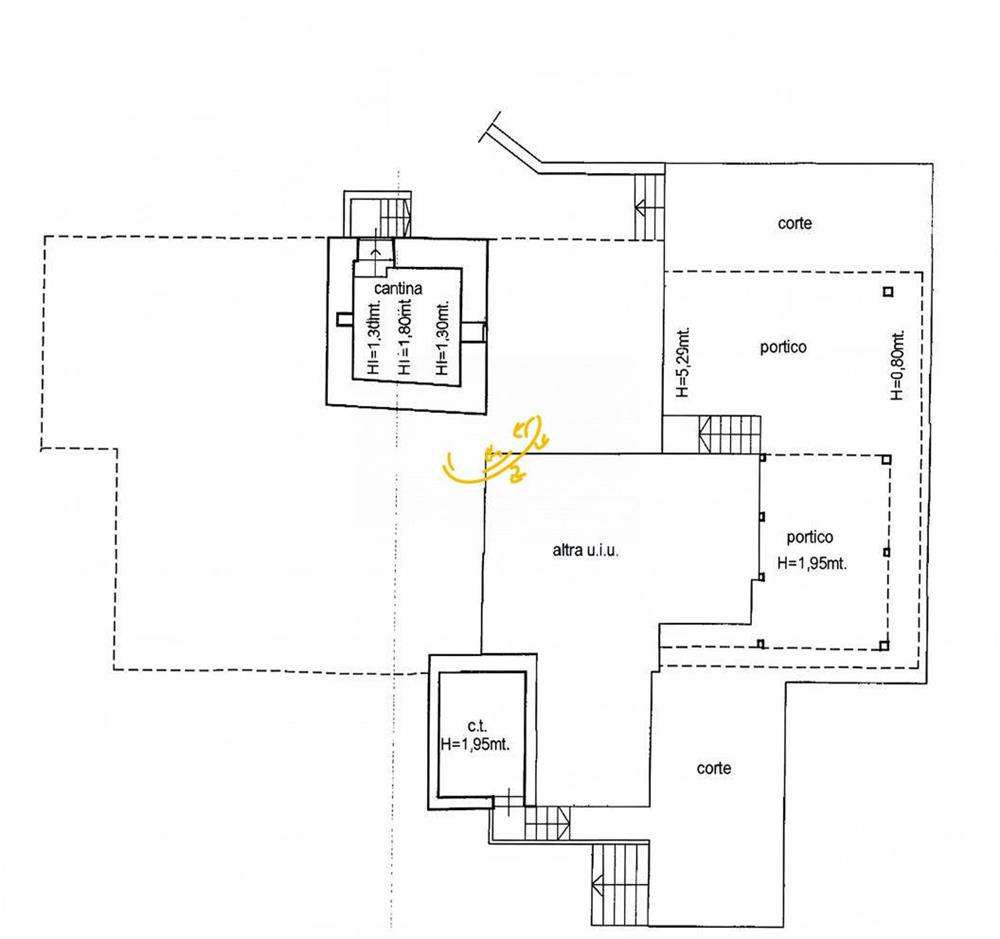
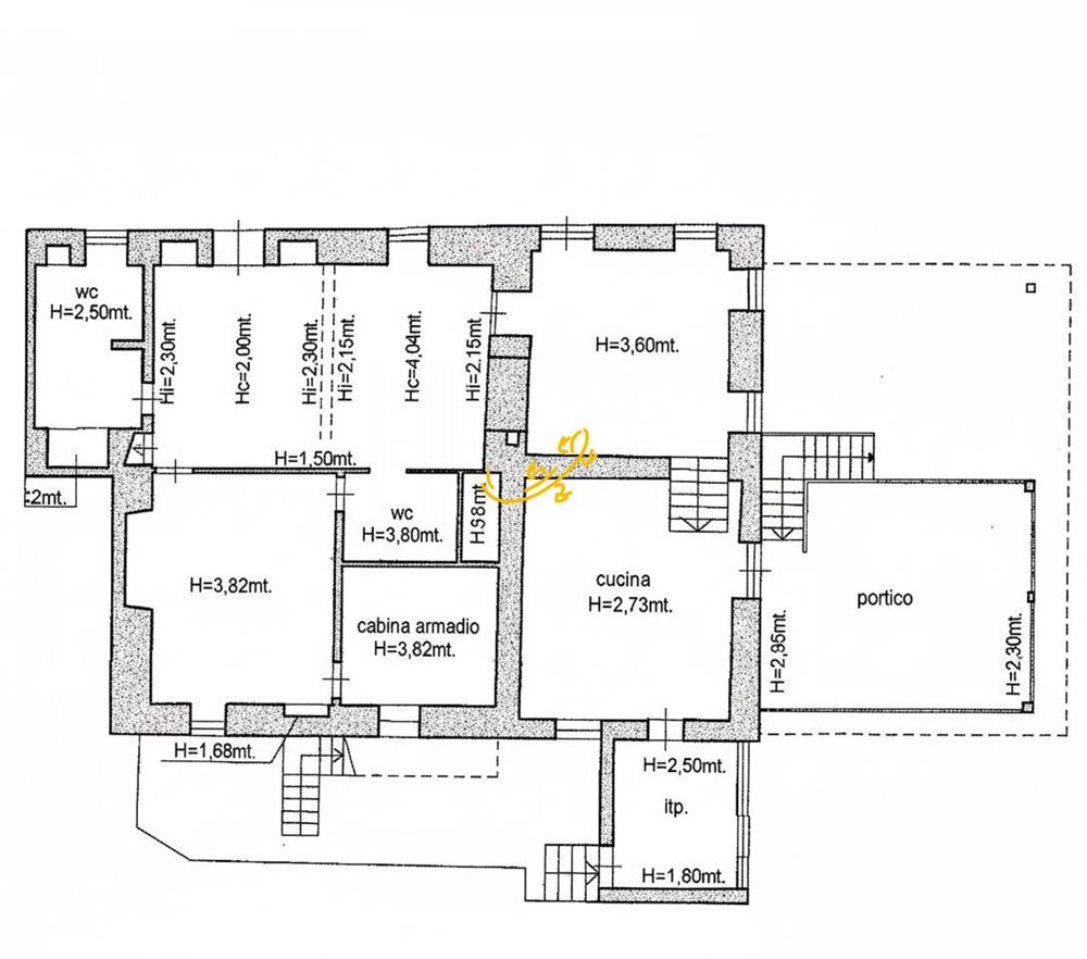
In a private and panoramic position, we offer an independent property built in stone and tuff. The main residence opens onto a spacious living room with a double-sided fireplace, connected to a second lounge that shares the same central feature, creating continuity and a warm atmosphere.
The sleeping area includes a master bedroom with en-suite bathroom and a large walk-in wardrobe, as well as a second bathroom. The bright and functional kitchen opens onto a veranda overlooking the garden and olive grove, with panoramic views. A practical laundry room completes this level. On the lower floor there is a fully stone-built apartment currently used as storage, comprising a master bedroom, a second bedroom, and a bathroom. From the main entrance, a staircase leads to the upper level, where there is a space currently used as an office, fully glazed and featuring a panoramic balcony. This area is also accessible via an external staircase. The layout lends itself easily to conversion into an additional independent apartment, including a bedroom with en-suite bathroom. The property is equipped with modern, energy-efficient systems, including: 16 kW photovoltaic system with storage battery, underfloor heating with heat pump, air conditioning in all rooms, complete electrical system, Imhoff septic system, spring water supply with the possibility of connection to the main aqueduct, water collection cistern. Externally, the land of approximately 4,000 sqm includes around 40 olive trees and various fruit trees. The garden also features a veranda with a wooden pergola. The property is completed by a large external storage area, a parking space with electric charging station, and dual access with electric gates.
Interiors: approx. 300 sqm
Land: approx. 4,000 sqm
Bedrooms: 4
Bathrooms: 4
This website uses cookies to improve your experience. We’ll assume you’re okay with it, but you can unsubscribe if you’d like. AcceptRejectCookie settings