Palazzo a Monopoli, Chiasso Portanova
Monopoli Chiasso PortanovaNel cuore del centro storico, a pochi…
€760,000
VENDI O RICERCA IL TUO IMMOBILE IN PUGLIA
Polignano, Polignano a Mare, Bari, Puglia, 70044, Italia
Vendita
€570,000
Polignano a Mare – Via San Pietro
Villa di nuova realizzazione chiavi in mano, situata in posizione strategica tra Polignano a Mare, Conversano e Castellana Grotte, a soli 8 km dal centro di Polignano.
L’immobile è stato progettato e rifinito con materiali di pregio rispettandone l’autenticità, garantendo eleganza, comfort e massima funzionalità. È composto da due unità abitative: la residenza principale e una comoda dependance.
Abitazione principale
La villa principale di circa 71mq si caratterizza per un design moderno e luminoso:
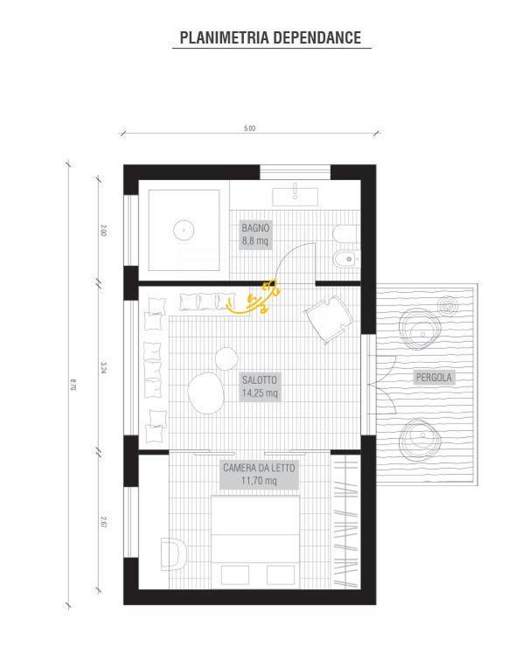
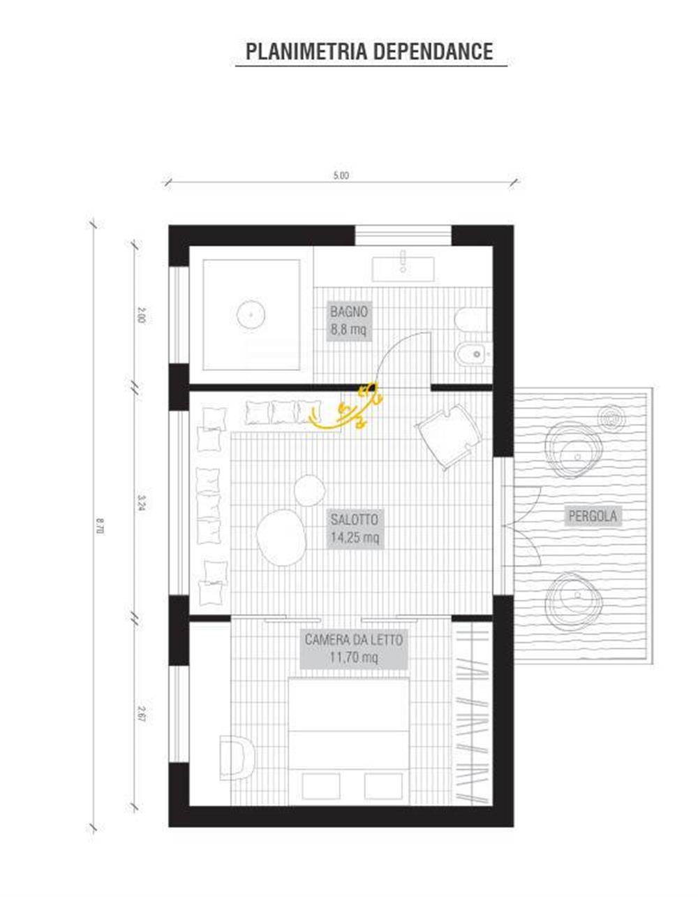
Dependance
Completa la proprietà una dependance indipendente di circa 50mq, perfetta per ospiti o per uso ricettivo, composta da:
Spazi esterni
La villa è immersa in un contesto naturale curato nei minimi dettagli:
Stato di consegna
La villa viene venduta completamente finita, con possibilità di personalizzazione, pronta per essere abitata sin da subito.
Interni: 120mq
Terreno: 7560mq
Camere: 3
Bagni: 3
Monopoli Chiasso PortanovaNel cuore del centro storico, a pochi…
€760,000
Putignano – Strada Comunale del RosarioA pochi minuti dal centro…
€250,000
Questo sito Web utilizza i cookie per migliorare la tua esperienza. Daremo per scontato che ti stia bene, ma puoi annullare l'iscrizione se lo desideri.
AccettaRifiutaImpostazioni
| Cookie | Durata | Descrizione |
|---|---|---|
| cookielawinfo-checkbox-necessary | 11 months | This cookie is set by GDPR Cookie Consent plugin. The cookies is used to store the user consent for the cookies in the category "Necessary". |
| cookielawinfo-checkbox-others | 11 months | This cookie is set by GDPR Cookie Consent plugin. The cookie is used to store the user consent for the cookies in the category "Other. |
| cookielawinfo-checkbox-performance | 11 months | This cookie is set by GDPR Cookie Consent plugin. The cookie is used to store the user consent for the cookies in the category "Performance". |