Villa a Ceglie Messapica, Contrada Recupero
Ceglie Messapica Contrada RecuperoIn posizione strategica tra Ostuni, Martina…
€220,000
VENDI O RICERCA IL TUO IMMOBILE IN PUGLIA
Contrada La Fica, Ostuni, Brindisi, Puglia, Italia
Vendita
€850,000
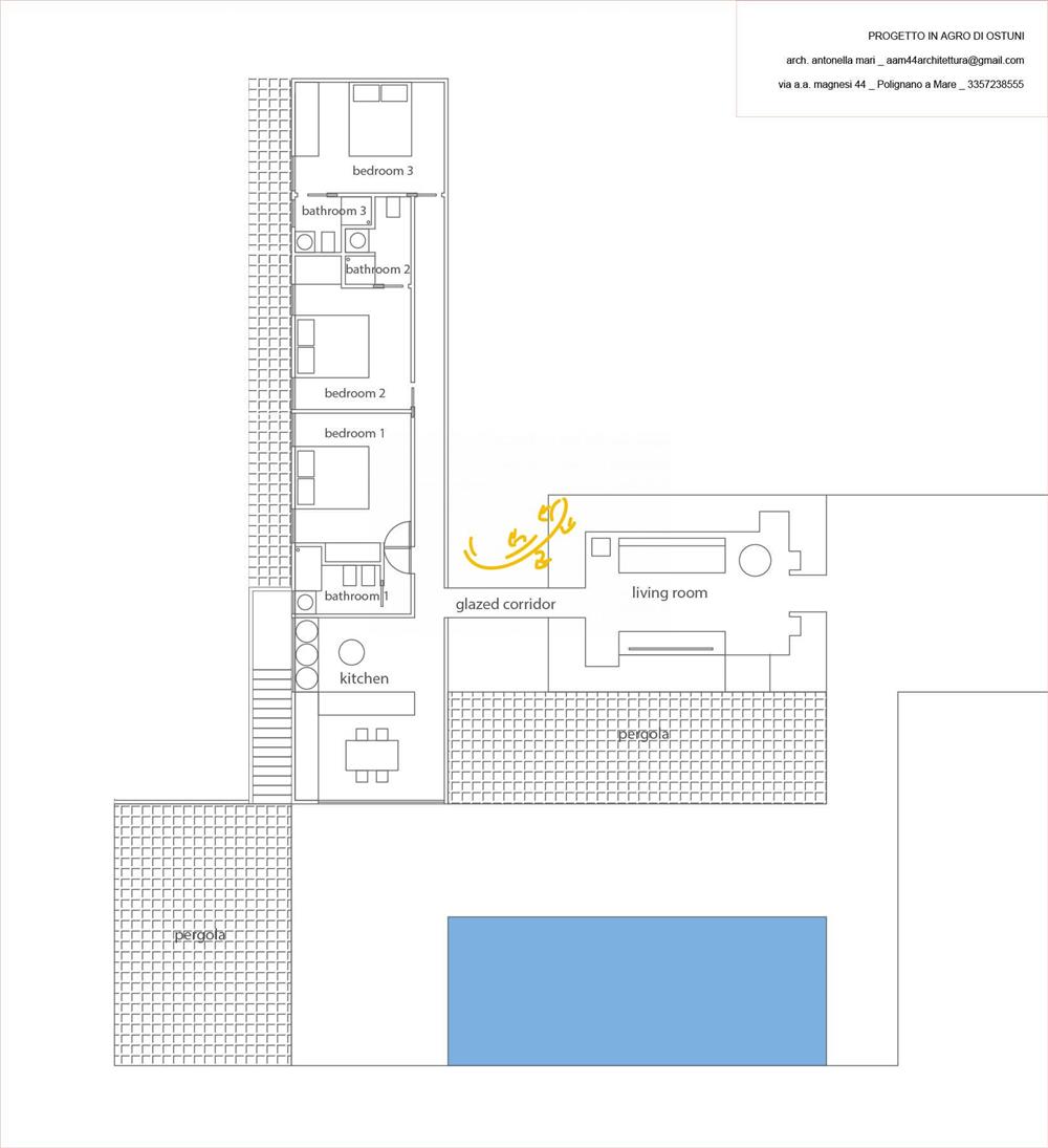
R 392 – Casale ad Ostuni
Restauro, ristrutturazione ed ampliamento di una lamia esistente con realizzazione di opere pertinenziali quali piscina, tettoie e pergolato nel Comune di Ostuni in contrada La Fica, posizionata sulla ciclovia dell’acquedotto. La lamia, appena ristrutturata ospiterà una living room di circa 18 mq e tramite un disimpegno vetrato sarà collegata ad un nuovo corpo di fabbrica in stile contemporaneo, ma in armonia con il contesto rurale.
L’ampliamento prevede la realizzazione di n. 3 camere matrimoniali (tutte di minimo 14 mq) con relativi bagni di pertinenza ed una ampia cucina abitabile di 22 mq che grazie ad una grande vetrata scorrevole si affaccia su una meravigliosa zona piscina.
Tutto circondato da un ampio terreno di 14000 mq.
Superficie commerciale: 150 mq – Pergole: mq 65 – Tettoia: mq 18 – Piscina: mq 40 – Cisterna: mq 100 (ipotetica SPA)
Ceglie Messapica Contrada RecuperoIn posizione strategica tra Ostuni, Martina…
€220,000
Ceglie Messapica – SP23Progetto di ampliamento e piscina (rilasciato)Proponiamo in…
€190,000
Questo sito Web utilizza i cookie per migliorare la tua esperienza. Daremo per scontato che ti stia bene, ma puoi annullare l'iscrizione se lo desideri.
AccettaRifiutaImpostazioni
| Cookie | Durata | Descrizione |
|---|---|---|
| cookielawinfo-checkbox-necessary | 11 months | This cookie is set by GDPR Cookie Consent plugin. The cookies is used to store the user consent for the cookies in the category "Necessary". |
| cookielawinfo-checkbox-others | 11 months | This cookie is set by GDPR Cookie Consent plugin. The cookie is used to store the user consent for the cookies in the category "Other. |
| cookielawinfo-checkbox-performance | 11 months | This cookie is set by GDPR Cookie Consent plugin. The cookie is used to store the user consent for the cookies in the category "Performance". |