Appartamento a Monopoli, Via Santa Maria
Monopoli Via Santa MariaProponiamo in vendita proprietà indipendente composta…
€950,000
VENDI O RICERCA IL TUO IMMOBILE IN PUGLIA
Contrada Monte Guarini, Fasano, Brindisi, Puglia, Italia
Vendita
€270,000
Fasano C. da Monte Guarini
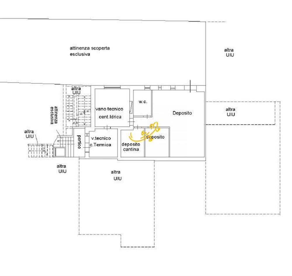
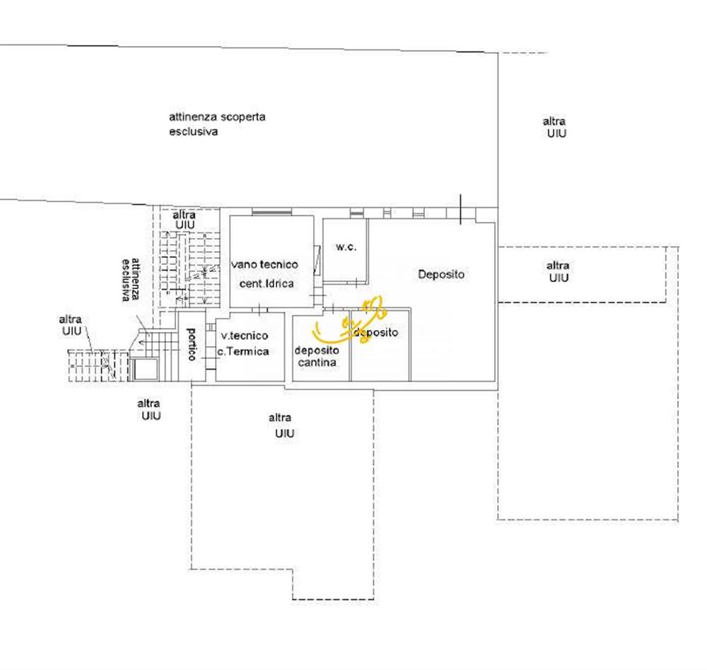
Nel suggestivo contesto della Selva di Fasano, in posizione riservata e panoramica, proponiamo in vendita una proprietà con vista mare, articolata su due livelli e ideale sia come residenza privata sia come investimento. L’abitazione principale si sviluppa al piano terra ed è caratterizzata da ambienti ampi e ben distribuiti. L’ingresso conduce a un luminoso living con cucina, valorizzato dall’affaccio su una grande veranda panoramica sul mare. La zona notte comprende due camere da letto, di cui una con bagno en suite ed un secondo bagno. Completa il piano un comodo ripostiglio.
Al piano inferiore troviamo un’unità indipendente, attualmente accatastata come deposito dove è stata ricavata una tavernetta con due bagni ed un camino. La proprietà dispone inoltre di giardino e piazzale pavimentato. Una soluzione interessante per chi è alla ricerca di una casa con vista mare e spazi generosi.
Interni: 216mq
Camere: 4
Bagni: 4
Terreno: 2140mq
Monopoli Via Santa MariaProponiamo in vendita proprietà indipendente composta…
€950,000
Polignano a Mare – Strada provinciale Polignano – Castellana G.Immersa…
€230,000
Questo sito Web utilizza i cookie per migliorare la tua esperienza. Daremo per scontato che ti stia bene, ma puoi annullare l'iscrizione se lo desideri.
AccettaRifiutaImpostazioni
| Cookie | Durata | Descrizione |
|---|---|---|
| cookielawinfo-checkbox-necessary | 11 months | This cookie is set by GDPR Cookie Consent plugin. The cookies is used to store the user consent for the cookies in the category "Necessary". |
| cookielawinfo-checkbox-others | 11 months | This cookie is set by GDPR Cookie Consent plugin. The cookie is used to store the user consent for the cookies in the category "Other. |
| cookielawinfo-checkbox-performance | 11 months | This cookie is set by GDPR Cookie Consent plugin. The cookie is used to store the user consent for the cookies in the category "Performance". |