Villa a Polignano a Mare, Strada Comunale Parco Balistris
Polignano a Mare – Strada Comunale Parco BalistrisIn posizione riservata…
€740,000
VENDI O RICERCA IL TUO IMMOBILE IN PUGLIA
Strada Comunale Lama D'Inferno, Castellana Grotte, Bari, Puglia, Italia
Vendita
€600,000
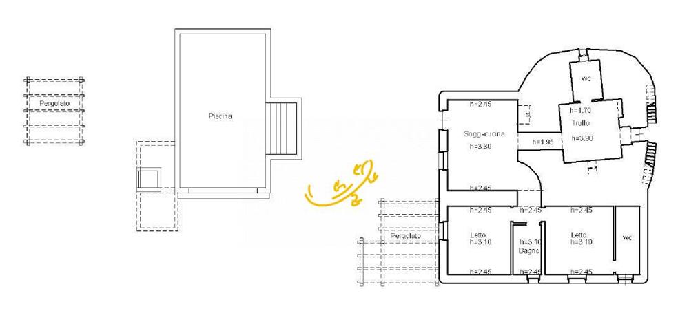
Castellana Grotte Strada Comunale Lama D’Inferno
A soli 2 km dal centro di Castellana Grotte, immerso nella campagna pugliese tra ulivi secolari e alberi da frutto, proponiamo in vendita trulli completamente ristrutturati, con piscina a sfioro e ampio giardino privato. La proprietà unisce il carattere dell’architettura tradizionale al comfort moderno ed è adatta sia come residenza privata di pregio sia come investimento turistico-ricettivo.
La zona giorno è composta da un soggiorno con cucina a vista e accesso diretto al giardino. La zona notte comprende una camera matrimoniale con bagno privato e doccia, una seconda camera matrimoniale ricavata nel trullo con bagno en suite dotato di vasca e un’altra camera doppia. È inoltre presente un ulteriore bagno con doccia a servizio della casa. Il comfort interno è garantito dalla presenza di una stufa a pellet e di split per la climatizzazione caldo/freddo, che rendono la proprietà fruibile in ogni periodo dell’anno. All’esterno, la piscina a sfioro con cascata si inserisce armoniosamente nel contesto naturale. Un porticato attrezzato ospita una cucina esterna completa di lavello e barbecue, affiancata da una comoda area pranzo all’aperto. Completano gli spazi esterni una doccia in pietra, una zona relax ombreggiata con pergolato e divani, oltre a un giardino con terreno circostante. La proprietà è dotata di sistema di videosorveglianza nelle aree esterne.
La posizione è strategica e consente di raggiungere facilmente le principali mete turistiche della zona, come le Grotte di Castellana, Alberobello, Polignano a Mare, Monopoli, la Valle d’Itria e la città dei Sassi di Matera.
Interni: circa 130mq
Terreno: circa 8000mq
Camere: 3
Bagni: 3
Polignano a Mare – Strada Comunale Parco BalistrisIn posizione riservata…
€740,000
Castellana Grotte Strada Comunale FoggialiIn un contesto rurale autentico…
€210,000
Questo sito Web utilizza i cookie per migliorare la tua esperienza. Daremo per scontato che ti stia bene, ma puoi annullare l'iscrizione se lo desideri.
AccettaRifiutaImpostazioni
| Cookie | Durata | Descrizione |
|---|---|---|
| cookielawinfo-checkbox-necessary | 11 months | This cookie is set by GDPR Cookie Consent plugin. The cookies is used to store the user consent for the cookies in the category "Necessary". |
| cookielawinfo-checkbox-others | 11 months | This cookie is set by GDPR Cookie Consent plugin. The cookie is used to store the user consent for the cookies in the category "Other. |
| cookielawinfo-checkbox-performance | 11 months | This cookie is set by GDPR Cookie Consent plugin. The cookie is used to store the user consent for the cookies in the category "Performance". |