Villa a Ceglie Messapica, Contrada Recupero
Ceglie Messapica Contrada RecuperoIn posizione strategica tra Ostuni, Martina…
€220,000
VENDI O RICERCA IL TUO IMMOBILE IN PUGLIA
CONTRADA CRISTO RE, Monopoli, Bari, Puglia, 70043, Italia
Vendita
€300,000
Monopoli – Contrada Cristo Re
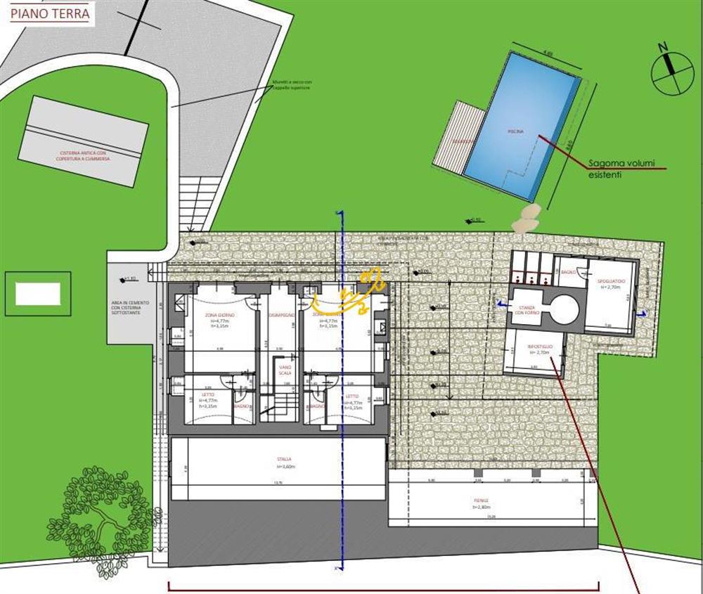
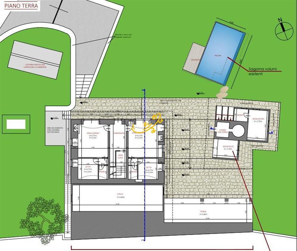
Stabile indipendente con vista mare, terreno e progetto piscina
Proponiamo in vendita un intero stabile indipendente con vista panoramica sul mare che si presta sia come residenza privata sia come investimento a reddito nel settore turistico-ricettivo.
L’immobile si sviluppa su due livelli principali, per una superficie complessiva di oltre 300 mq interni, così suddivisi:
La struttura è completamente da ristrutturare, offrendo però un’eccellente versatilità progettuale: gli spazi ampi e ben distribuiti consentono di realizzare facilmente 2, 3 o 4 appartamenti indipendenti, oppure fino a 8 camere con bagno privato, soluzione ideale per un’attività di B&B, boutique hotel o casa vacanze.
Completano la proprietà circa 90 mq di pertinenze esterne regolarmente accatastate, perfette per la creazione di garage, box auto o dependance.
Un importante valore aggiunto è rappresentato dall’autorizzazione paesaggistica già approvata per la costruzione di una piscina panoramica 4×10 m.
La proprietà dispone inoltre di:
Caratteristiche principali:
-Superficie: 340mq
-Terreno: 12.648mq
-Camere da letto: da realizzare
-Bagni: 3
-Progetto per piscina approvato
-Possibilità di frazionamento e personalizzazione
Ceglie Messapica Contrada RecuperoIn posizione strategica tra Ostuni, Martina…
€220,000
Ceglie Messapica – SP23Progetto di ampliamento e piscina (rilasciato)Proponiamo in…
€190,000
Questo sito Web utilizza i cookie per migliorare la tua esperienza. Daremo per scontato che ti stia bene, ma puoi annullare l'iscrizione se lo desideri.
AccettaRifiutaImpostazioni
| Cookie | Durata | Descrizione |
|---|---|---|
| cookielawinfo-checkbox-necessary | 11 months | This cookie is set by GDPR Cookie Consent plugin. The cookies is used to store the user consent for the cookies in the category "Necessary". |
| cookielawinfo-checkbox-others | 11 months | This cookie is set by GDPR Cookie Consent plugin. The cookie is used to store the user consent for the cookies in the category "Other. |
| cookielawinfo-checkbox-performance | 11 months | This cookie is set by GDPR Cookie Consent plugin. The cookie is used to store the user consent for the cookies in the category "Performance". |