Villa a Ceglie Messapica, Contrada Recupero
Ceglie Messapica Contrada RecuperoIn posizione strategica tra Ostuni, Martina…
€220,000
VENDI O RICERCA IL TUO IMMOBILE IN PUGLIA
Contrada Monte Pizzuto, Fasano, Brindisi, Puglia, 72015, Italia
Vendita
€2,100,000
Fasano – Contrada Monte Pizzuto
Tenuta Vista Mare con Trulli e Piscina
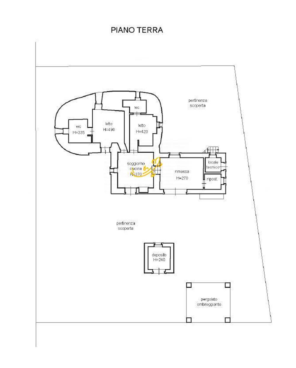
Tra Fasano e Cisternino, a soli 5 km dalle splendide spiagge del Mare Adriatico, proponiamo in vendita una tenuta in pietra e tufo, immersa nella natura e nel cuore della Valle d’Itria. Una proprietà di prestigio interamente ristrutturata che al momento è attiva come struttura ricettiva con ottimo rendimento. La tenuta è così suddivisa:
L’immobile principale è una torre disposta su due livelli
Attorno alla torre si sviluppano tre unità abitative indipendenti, disposte a ferro di cavallo e collegate da un elegante pergolato che crea un’atmosfera di serenità e intimità. Ciascuna unità è composta da:
La tenuta comprende inoltre un affascinante complesso di trulli con 3 coni e lamie, composto da:
Spazi esterni
Al centro della proprietà si trova una piscina circondata da prato all’inglese con piante ornamentali e pergolato, ideale per momenti di relax e convivialità. L’intera tenuta si estende su 1 ettaro di terreno, con circa un centinaio di ulivi secolari e alberi da frutto, che garantiscono privacy e una vista suggestiva sul paesaggio circostante e sul mare.
Dettagli principali
Perfetto come residenza privata di prestigio o come investimento nel settore turistico-ricettivo, si presenta come un rifugio esclusivo immerso nella macchia mediterranea, con le colline alle spalle e il mare a pochi passi.
Ceglie Messapica Contrada RecuperoIn posizione strategica tra Ostuni, Martina…
€220,000
Ceglie Messapica – SP23Progetto di ampliamento e piscina (rilasciato)Proponiamo in…
€190,000
Questo sito Web utilizza i cookie per migliorare la tua esperienza. Daremo per scontato che ti stia bene, ma puoi annullare l'iscrizione se lo desideri.
AccettaRifiutaImpostazioni
| Cookie | Durata | Descrizione |
|---|---|---|
| cookielawinfo-checkbox-necessary | 11 months | This cookie is set by GDPR Cookie Consent plugin. The cookies is used to store the user consent for the cookies in the category "Necessary". |
| cookielawinfo-checkbox-others | 11 months | This cookie is set by GDPR Cookie Consent plugin. The cookie is used to store the user consent for the cookies in the category "Other. |
| cookielawinfo-checkbox-performance | 11 months | This cookie is set by GDPR Cookie Consent plugin. The cookie is used to store the user consent for the cookies in the category "Performance". |