Villa a Ceglie Messapica, Contrada Recupero
Ceglie Messapica Contrada RecuperoIn posizione strategica tra Ostuni, Martina…
€220,000
VENDI O RICERCA IL TUO IMMOBILE IN PUGLIA
Strada Comunale Barsento, Alberobello, Bari, Puglia, 70017, Italia
Vendita
€800,000
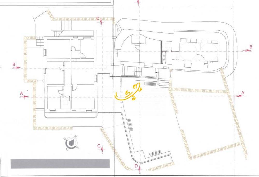
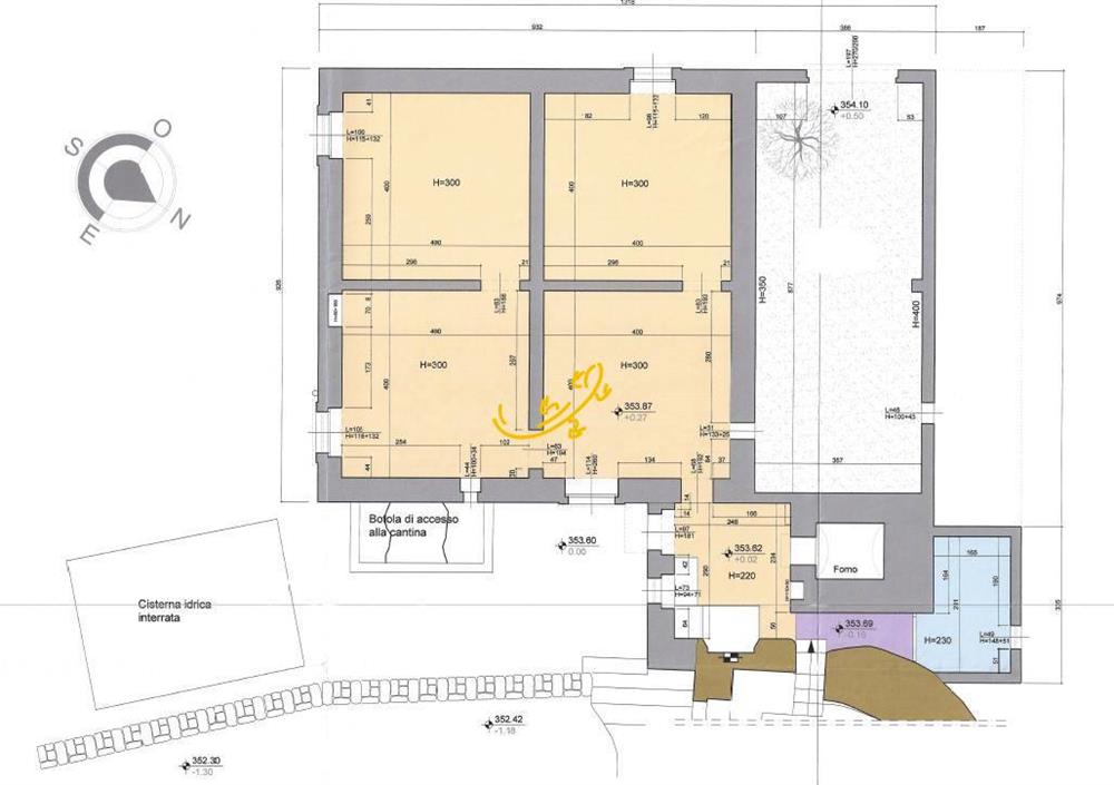
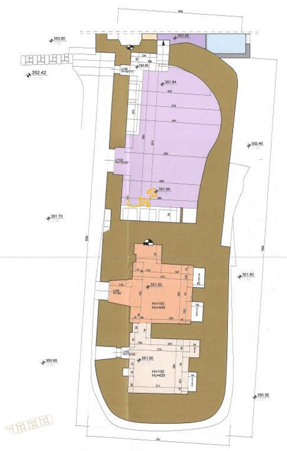
Alberobello – Strada Comunale Barsento
Masseria con Trulli nella Valle d’Itria
Nel cuore della suggestiva Valle d’Itria, a soli 5 km da Alberobello e 6 km da Noci, proponiamo in vendita una masseria in parte ristrutturata, immersa nella quiete della campagna pugliese, nella località Barsento, area di straordinario valore naturalistico e paesaggistico, tra le più apprezzate della zona.
La proprietà si sviluppa su due livelli ed è composta da lamie e trulli, elementi autentici della tradizione locale che conferiscono unicità, charme e forte identità all’immobile.
La masseria è circondata da un terreno di circa 6 ettari, suddiviso tra seminativo, pascolo e frutteto, ideale sia per uso privato che per attività agricola o ricettiva.
Situata in prossimità della Ciclovia dell’Acquedotto Pugliese, la proprietà gode di una posizione strategica, particolarmente ricercata dal turismo lento, naturalistico ed esperienziale, grazie al contesto incontaminato di Barsento.
Ottima opportunità di investimento: è possibile realizzare un’unica grande abitazione oppure fino a 5 mini appartamenti, rendendo l’immobile ideale come struttura ricettiva, casa vacanze o agriturismo.
Punti di forza:
Soluzione ideale per chi cerca tranquillità, natura e un investimento di valore nel cuore più autentico della Puglia.
Ceglie Messapica Contrada RecuperoIn posizione strategica tra Ostuni, Martina…
€220,000
Ceglie Messapica – SP23Progetto di ampliamento e piscina (rilasciato)Proponiamo in…
€190,000
Questo sito Web utilizza i cookie per migliorare la tua esperienza. Daremo per scontato che ti stia bene, ma puoi annullare l'iscrizione se lo desideri.
AccettaRifiutaImpostazioni
| Cookie | Durata | Descrizione |
|---|---|---|
| cookielawinfo-checkbox-necessary | 11 months | This cookie is set by GDPR Cookie Consent plugin. The cookies is used to store the user consent for the cookies in the category "Necessary". |
| cookielawinfo-checkbox-others | 11 months | This cookie is set by GDPR Cookie Consent plugin. The cookie is used to store the user consent for the cookies in the category "Other. |
| cookielawinfo-checkbox-performance | 11 months | This cookie is set by GDPR Cookie Consent plugin. The cookie is used to store the user consent for the cookies in the category "Performance". |