Appartamento a Monopoli, Chiasso San Vito
Monopoli – Chiasso San Vito Nel cuore del centro storico…
€950,000
VENDI O RICERCA IL TUO IMMOBILE IN PUGLIA
Via Giuseppe di Vagno, Mola di Bari, Bari, Puglia, Italia
Vendita
€570,000
Mola di Bari – Via Giuseppe di Vagno
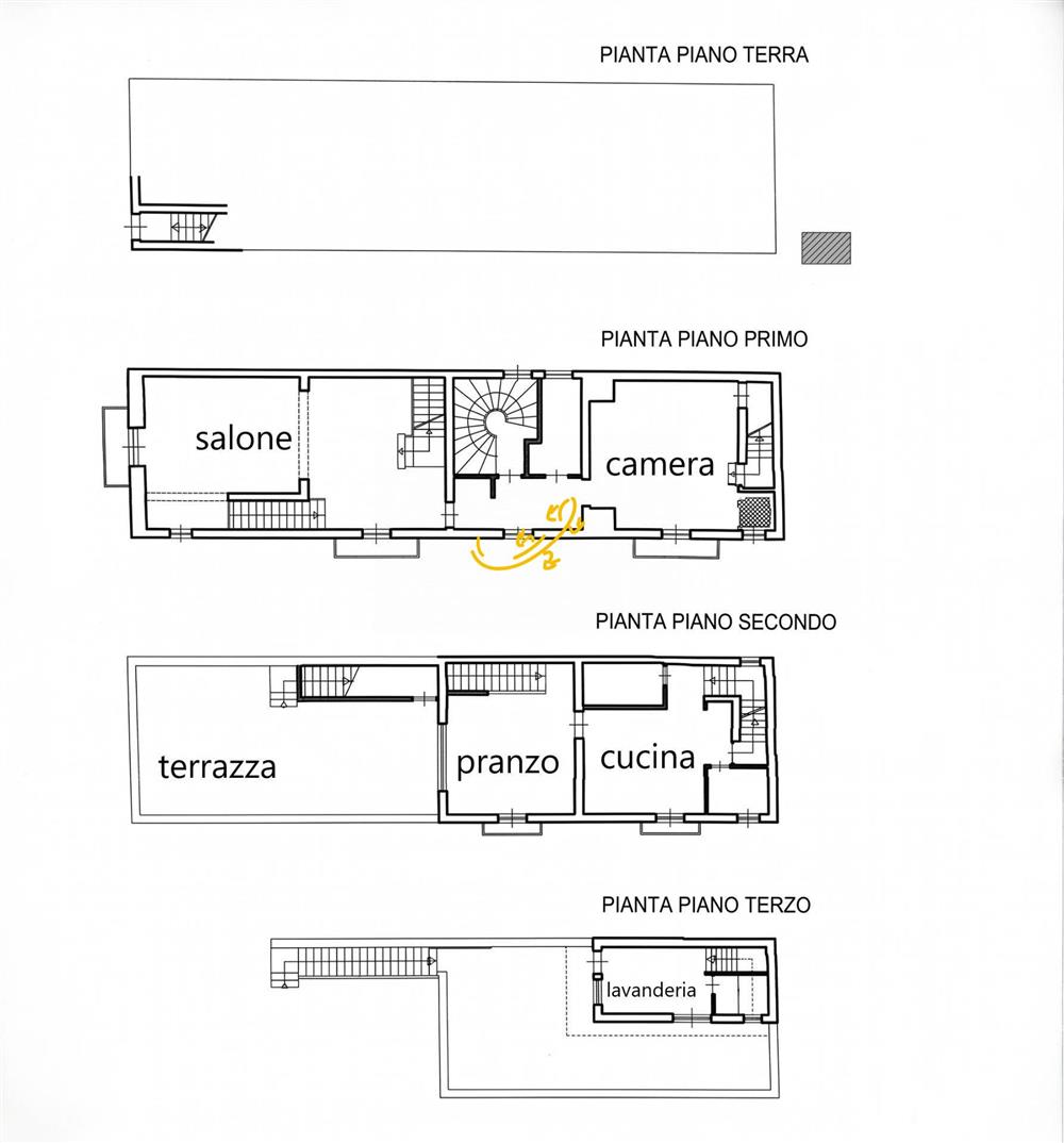
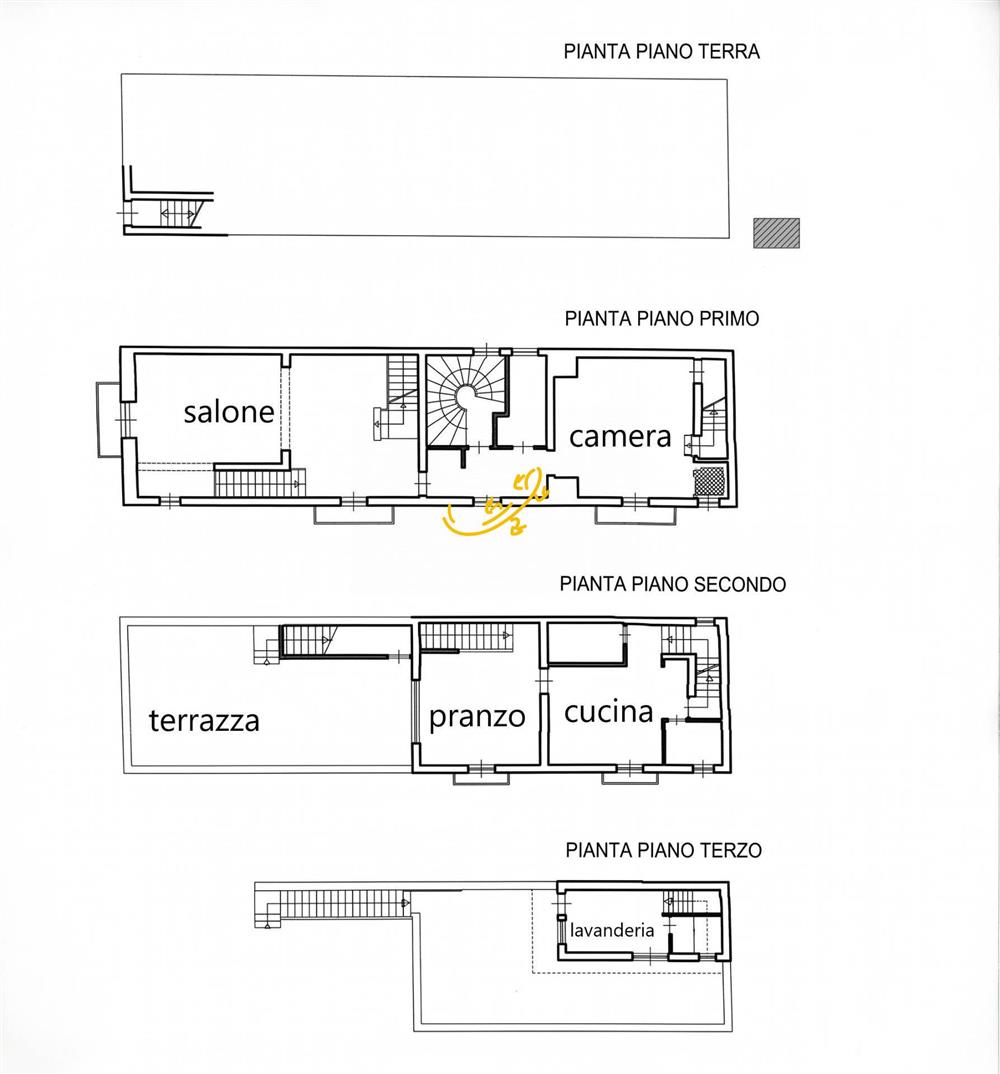
Nel cuore di Mola di Bari, a pochi passi dal lungomare e dalla piazza principale, proponiamo in vendita un palazzo terracielo angolare di ampia metratura, una soluzione rara per posizione, dimensioni e caratteristiche architettoniche. L’immobile si sviluppa su più livelli ed è caratterizzato da una doppia esposizione angolare che garantisce luminosità e ariosità in tutti gli ambienti. La ristrutturazione ha valorizzato gli elementi originari, mantenendo intatto il fascino della pietra a vista, delle volte a stella e a crociera, e delle finiture autentiche come chianche e parquet.
Al primo livello troviamo un ampio living con camino, due camere da letto e un bagno.
Il secondo livello ospita una cucina con zona pranzo, lavanderia, un ulteriore bagno e accesso diretto a un grande terrazzo attrezzato con pergola.
Al terzo livello è presente un’ulteriore bagno ed una stanza con vetrata e affaccio su terrazza vista mare.
Gli ambienti sono generosi, ben distribuiti e collegati sia internamente che esternamente tramite scale, rendendo la proprietà estremamente versatile, sia come residenza privata che come investimento.
Completano la proprietà, al piano terra:
Due ampie terrazze, vista mare e una posizione strategica rendono questo immobile una proposta unica sul mercato di Mola.
Interni: 339mq
Camere da letto: 3
Bagni: 5
Monopoli – Chiasso San Vito Nel cuore del centro storico…
€950,000
Monopoli Via Santa MariaProponiamo in vendita proprietà indipendente composta…
€950,000
Questo sito Web utilizza i cookie per migliorare la tua esperienza. Daremo per scontato che ti stia bene, ma puoi annullare l'iscrizione se lo desideri.
AccettaRifiutaImpostazioni
| Cookie | Durata | Descrizione |
|---|---|---|
| cookielawinfo-checkbox-necessary | 11 months | This cookie is set by GDPR Cookie Consent plugin. The cookies is used to store the user consent for the cookies in the category "Necessary". |
| cookielawinfo-checkbox-others | 11 months | This cookie is set by GDPR Cookie Consent plugin. The cookie is used to store the user consent for the cookies in the category "Other. |
| cookielawinfo-checkbox-performance | 11 months | This cookie is set by GDPR Cookie Consent plugin. The cookie is used to store the user consent for the cookies in the category "Performance". |