Villa a Ceglie Messapica, Contrada Recupero
Ceglie Messapica Contrada RecuperoIn posizione strategica tra Ostuni, Martina…
€220,000
VENDI O RICERCA IL TUO IMMOBILE IN PUGLIA
piazza giuseppe garibaldi, Castellana Grotte, Bari, Puglia, Italia
Vendita
€160,000
Castellana Grotte – U 169
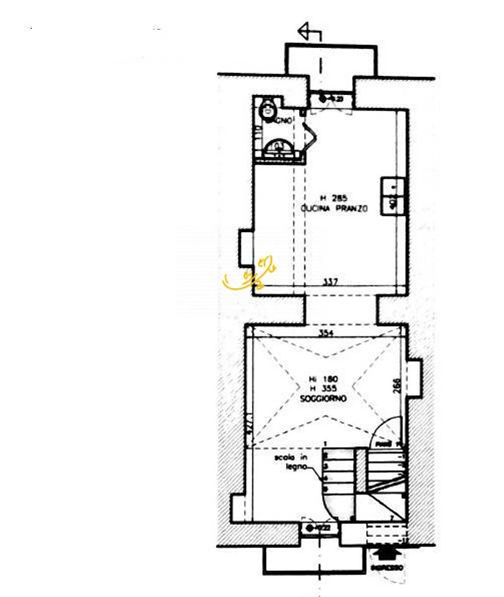
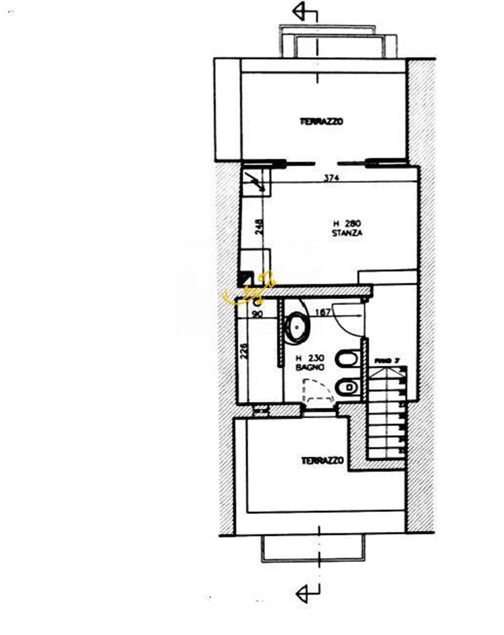
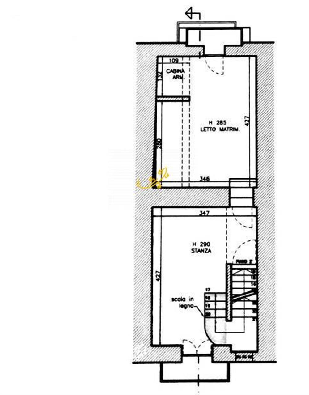
Nel cuore del centro storico di Castellana Grotte, a pochi passi dalla piazza principale, proponiamo in vendita un appartamento in pietra completamente ristrutturato e disposto su tre livelli.
Al primo piano, l’immobile offre un accogliente angolo cottura, una spaziosa zona living, un bagno di servizio e un balcone. Salendo al secondo piano, si trovano una camera da letto matrimoniale e un’ulteriore camera con divano letto. L’ultimo piano è caratterizzato da un terrazzo e un vano lavanderia con possibilità di realizzare una cucina, e da un ampio bagno con finiture di alta qualità.
La proprietà è dotata di impianti nuovi, un camino e riscaldamento autonomo.
Camere da letto: 2
Bagni: 2
Ceglie Messapica Contrada RecuperoIn posizione strategica tra Ostuni, Martina…
€220,000
Ceglie Messapica – SP23Progetto di ampliamento e piscina (rilasciato)Proponiamo in…
€190,000
Questo sito Web utilizza i cookie per migliorare la tua esperienza. Daremo per scontato che ti stia bene, ma puoi annullare l'iscrizione se lo desideri.
AccettaRifiutaImpostazioni
| Cookie | Durata | Descrizione |
|---|---|---|
| cookielawinfo-checkbox-necessary | 11 months | This cookie is set by GDPR Cookie Consent plugin. The cookies is used to store the user consent for the cookies in the category "Necessary". |
| cookielawinfo-checkbox-others | 11 months | This cookie is set by GDPR Cookie Consent plugin. The cookie is used to store the user consent for the cookies in the category "Other. |
| cookielawinfo-checkbox-performance | 11 months | This cookie is set by GDPR Cookie Consent plugin. The cookie is used to store the user consent for the cookies in the category "Performance". |