SELL OR SEARCH YOUR PROPERTY IN APULIA
Strada Vaccara, Martina Franca, Taranto, Puglia, Italia
For Sale
€140,000
Martina Franca – Contrada Vaccara
Trulli and Lamie with Panoramic Land and Approved Project
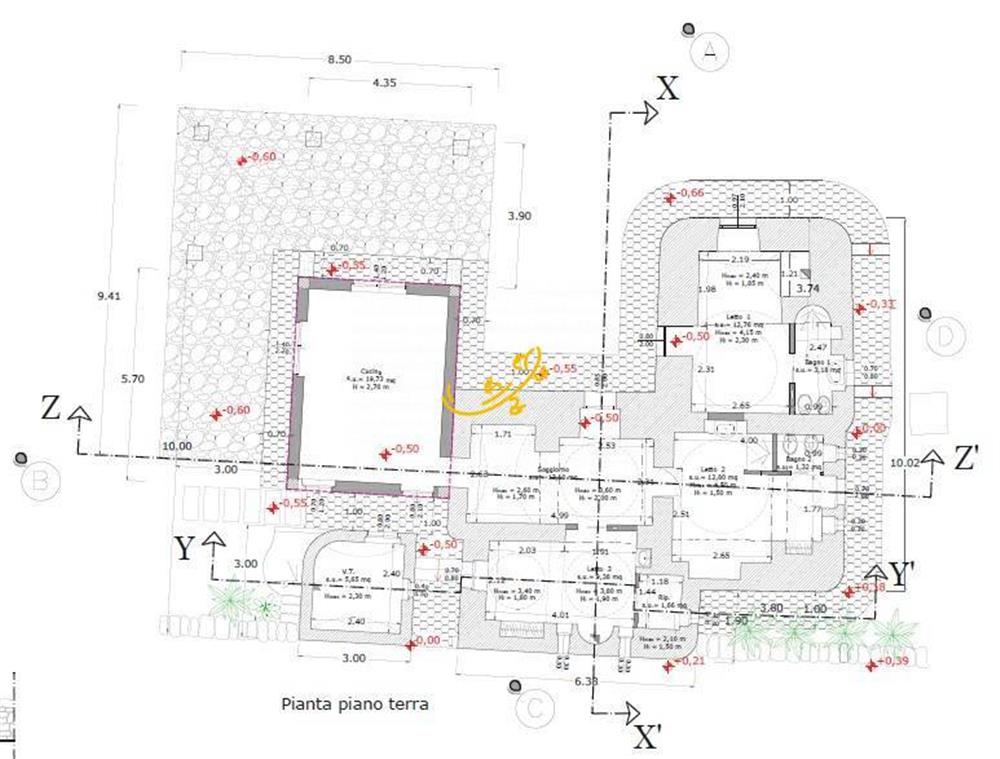
We offer for sale a complex of trulli with 7 cones and additional lamie, located just 6 km from the centre of Martina Franca and 10 km from the centre of Locorotondo. The property has a total internal surface of approximately 100 sqm, completely in need of renovation, with the possibility to create 3 bedrooms, 3 bathrooms and a spacious living area. The panoramic land extends for approximately 12,000 sqm in front of the property and includes an approved project for a 4 x 8 swimming pool and outdoor living areas. This property is ideal as an investment for the development of a hospitality project.
– Restoration of the existing trulli: The project includes the careful restoration of the existing trulli in the Valle d’Itria, with particular attention to preserving traditional materials and construction techniques. Damaged parts will be repaired and structurally consolidated, maintaining the authentic rural character of the property. Some internal walls will be modified to create three bedrooms with en-suite bathrooms, as well as functional areas including living spaces and an external laundry room.
– Extension and comfort: A bright kitchen will be added, opening onto the surrounding landscape, with a large outdoor area shaded by a wooden pergola. This outdoor space will feature an external kitchen, a large dining table and a relaxation area. Special attention will be given to the landscape design, preserving existing trees and creating a Mediterranean garden next to the infinity pool.
– Attention to detail and accessibility: The project also includes practical elements such as a parking area, easily accessible yet discreetly hidden by surrounding vegetation. The goal is to create a unique environment where tradition and modern comfort blend harmoniously, offering guests an authentic and refined experience in the heart of the Apulian countryside.
Internal area: approx. 100 sqm
Land: approx. 12,000 sqm
Bedrooms: 3
Bathrooms: 3
PROPERTY VIDEO:
https://www.youtube.com/watch?v=88JfoNUmNzE
PROJECT VIDEO:
https://youtu.be/cRTt6mNcUm0
This website uses cookies to improve your experience. We’ll assume you’re okay with it, but you can unsubscribe if you’d like. AcceptRejectCookie settings