SELL OR SEARCH YOUR PROPERTY IN APULIA
Contrada Cappelluzzo, Ostuni, Brindisi, Puglia, Italia
For Sale
€180,000
Ostuni – Contrada Cappelluzzo
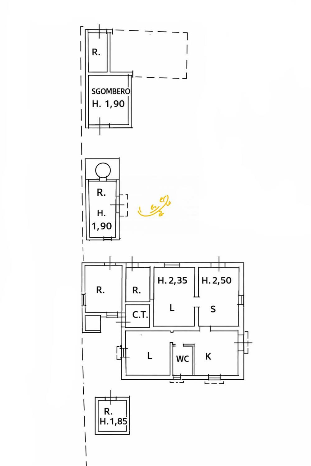
Just a few minutes from the White City and the Adriatic Sea, in the heart of the Itria Valley between Ostuni, Martina Franca and Cisternino, we offer for sale an ancient detached farmhouse with land, ideal for those wishing to create a private residence or an investment in the tourist hospitality sector. The property extends over an internal surface area of approximately 119 sqm and requires complete renovation. A preliminary redevelopment project has already been submitted, envisaging the creation of 3 bedrooms, each with en-suite bathroom, a kitchen with outdoor patio, and a swimming pool. Externally, the farmhouse is surrounded by approximately 8,000 sqm of land, characterized by typical Mediterranean vegetation and olive trees. The location is particularly appealing: private yet not isolated, easily accessible and well connected to the main towns of the Itria Valley and the coastline.
Internal area: 119 sqm
Land: 7,985 sqm
Bedrooms: 3
Bathrooms: 3
This website uses cookies to improve your experience. We’ll assume you’re okay with it, but you can unsubscribe if you’d like. AcceptRejectCookie settings