SELL OR SEARCH YOUR PROPERTY IN APULIA
Contrada Galante, Ostuni, Brindisi, Puglia, 72017, Italia
For Sale
€350,000
Ostuni – Contrada Galante
Shell Property with Olive Grove – Valle d’Itria
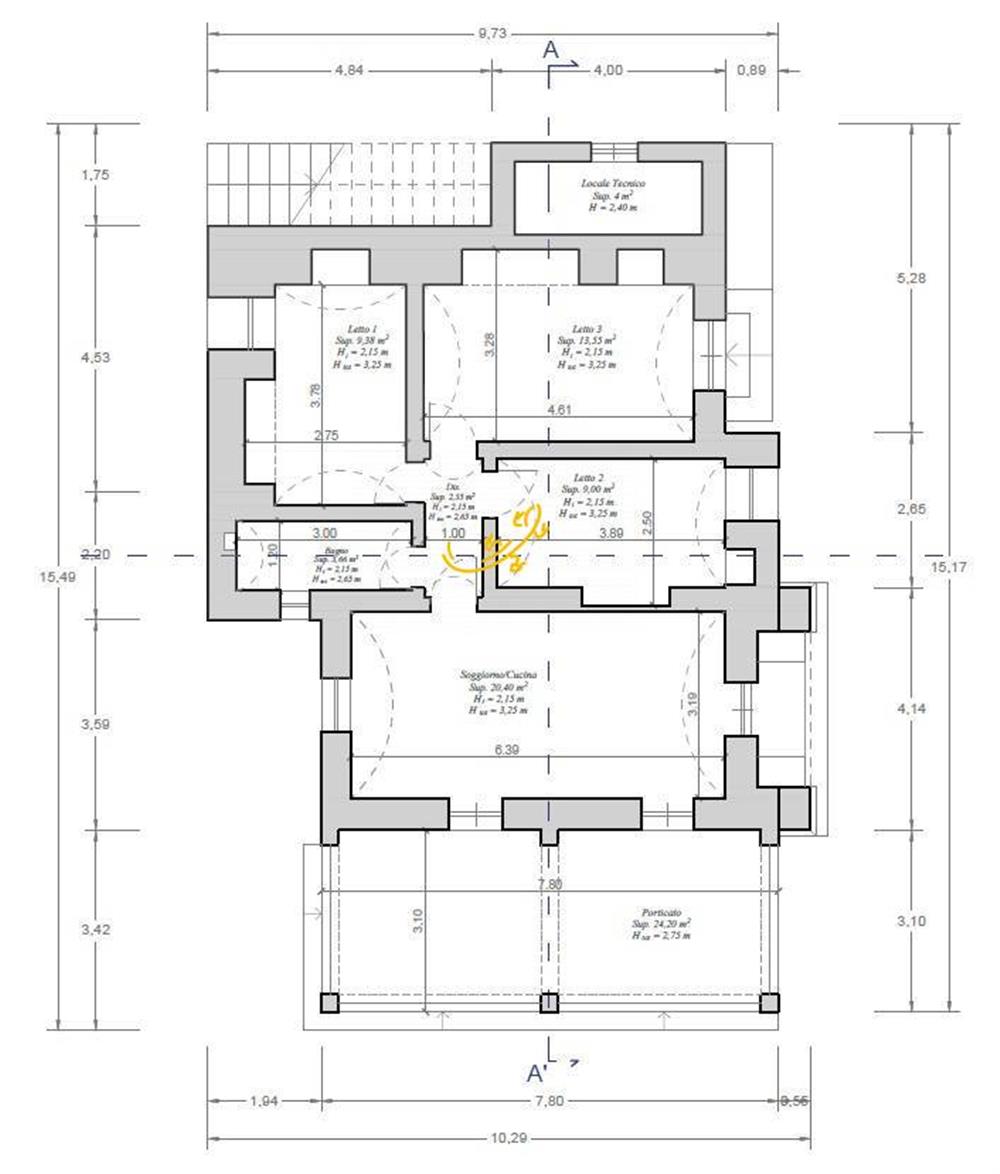
In the authentic heart of the Valle d’Itria, between Martina Franca, Ostuni and Cisternino, we offer for sale a shell property featuring generous indoor and outdoor spaces. The property is set on a panoramic plot of approximately 6,000 sqm, enriched with olive trees and fruit trees.
The building has been designed with a modern and functional layout, conceived to enjoy the home in every season, both indoors and outdoors.
A solution that combines the charm of the Apulian countryside with the opportunity to customize every detail according to personal taste and needs.
An ideal opportunity for those seeking a private residence, a holiday home, or an investment in one of the most sought-after and picturesque areas of Puglia.
Main features:
Bedrooms: 3
Bathrooms: 1
Land: 6,000 sqm
Internal area: 65 sqm
This website uses cookies to improve your experience. We’ll assume you’re okay with it, but you can unsubscribe if you’d like. AcceptRejectCookie settings