SELL OR SEARCH YOUR PROPERTY IN APULIA
Via Villa Castelli, Martina Franca, Taranto, Puglia, 74015, Italia
For Sale
€70,000
Martina Franca – Via Villa Castelli
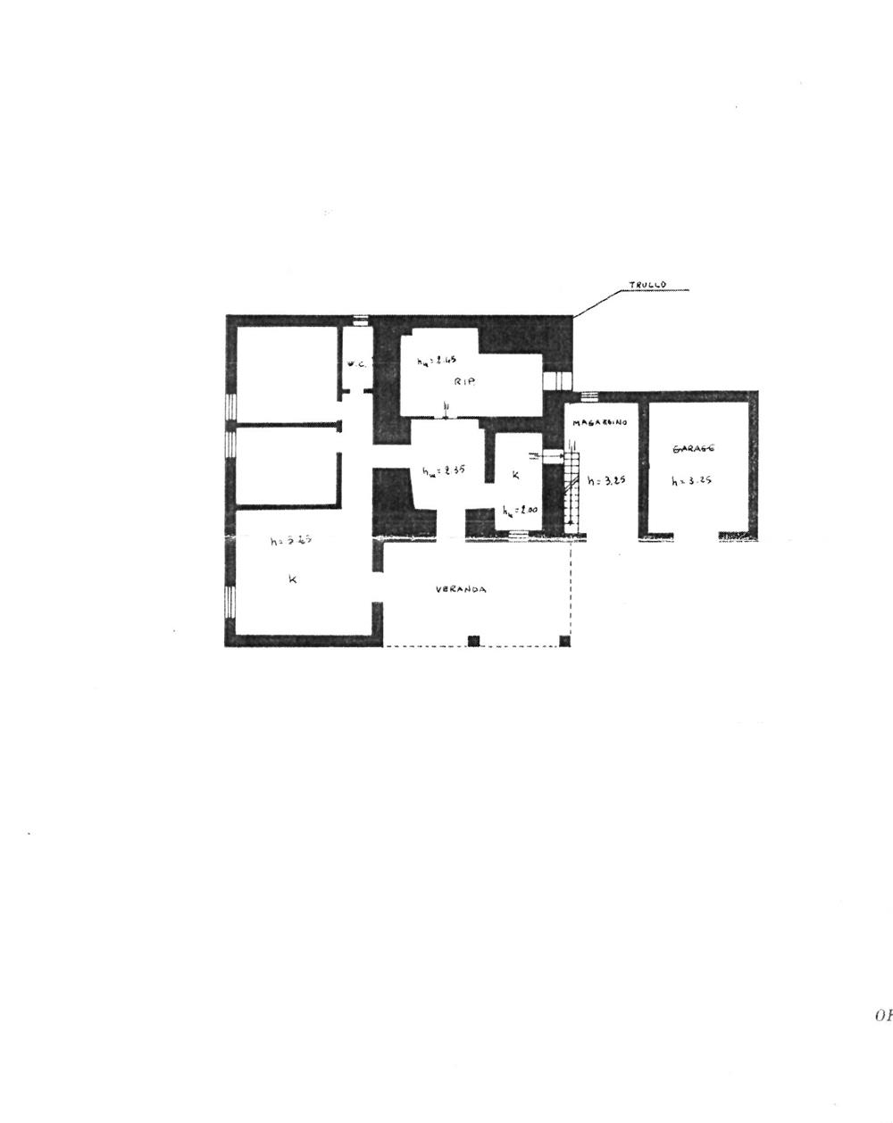
Just 6 km from the town centre and 9 km from Ceglie Messapica, we offer for sale a villa with trulli (3 cones) to be renovated, set in the peace and quiet of the countryside.
The property covers approximately 130 sqm of internal space and consists of an entrance leading to a spacious living room, one bathroom, and five additional rooms, which can be redesigned and customised according to your needs.
The property also includes a storage room, a garage, and about 5,600 sqm of land with a pleasant panoramic view.
Internal area: approx. 130 sqm
Land: approx. 5,600 sqm
Bedrooms: 1
Bathrooms: 1
This website uses cookies to improve your experience. We’ll assume you’re okay with it, but you can unsubscribe if you’d like. AcceptRejectCookie settings