Villa a Ceglie Messapica, Contrada Recupero
Ceglie Messapica Contrada RecuperoIn posizione strategica tra Ostuni, Martina…
€220,000
VENDI O RICERCA IL TUO IMMOBILE IN PUGLIA
contrada monte carretto, Conversano, Bari, Puglia, Italia
Vendita
€750,000
R 453 – Trulli e lamie ristrutturati a Conversano
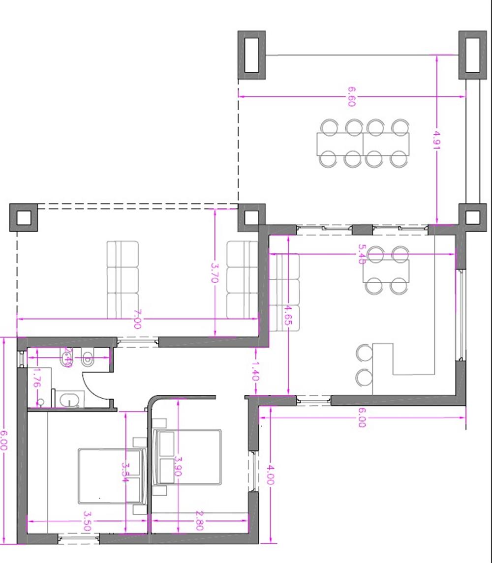
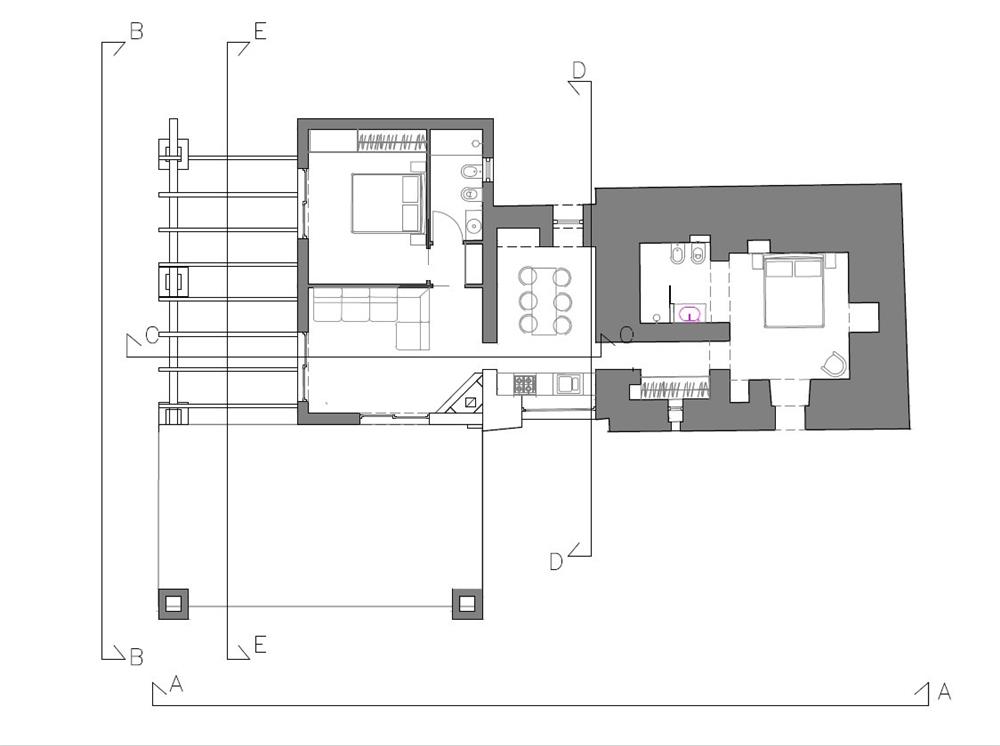
CONVERSANO C.da Monte Carretto, a soli 5 km a Castellana Grotte e a 8 km da Conversano, proponiamo in vendita complesso di trulli e dependance con terreno attualmente in fase di ristrutturazione e venduto “chiavi in mano” con una completa ristrutturazione come da progetto.
L’immobile è composto da un trullo con lamia di circa 90 mq con veranda coperta di circa 44 mq, ingresso in ampio soggiorno, cucina abitabile, due camere da letto matrimoniali entrambe con bagno en suite.
Una dependance di circa 70 mq con una veranda coperta di circa 30 mq, ingresso in soggiorno con cucina open space, due camere da letto matrimoniali ed un bagno.
Completano la proprietà una piscina di 40 mq con area solarium un terreno di circa 8000 mq con numerosi ulivi ed alberi da frutto.
La struttura è situata in una posizione panoramica con vista sulla collina in un contesto tranquillo e posizione strategica a pochi chilometri dal centro di Castellana Grotte.
Possibilità di personalizzazione in corso di ristrutturazione.
Ceglie Messapica Contrada RecuperoIn posizione strategica tra Ostuni, Martina…
€220,000
Ceglie Messapica – SP23Progetto di ampliamento e piscina (rilasciato)Proponiamo in…
€190,000
Questo sito Web utilizza i cookie per migliorare la tua esperienza. Daremo per scontato che ti stia bene, ma puoi annullare l'iscrizione se lo desideri.
AccettaRifiutaImpostazioni
| Cookie | Durata | Descrizione |
|---|---|---|
| cookielawinfo-checkbox-necessary | 11 months | This cookie is set by GDPR Cookie Consent plugin. The cookies is used to store the user consent for the cookies in the category "Necessary". |
| cookielawinfo-checkbox-others | 11 months | This cookie is set by GDPR Cookie Consent plugin. The cookie is used to store the user consent for the cookies in the category "Other. |
| cookielawinfo-checkbox-performance | 11 months | This cookie is set by GDPR Cookie Consent plugin. The cookie is used to store the user consent for the cookies in the category "Performance". |