Villa a Ceglie Messapica, Contrada Recupero
Ceglie Messapica Contrada RecuperoIn posizione strategica tra Ostuni, Martina…
€220,000
VENDI O RICERCA IL TUO IMMOBILE IN PUGLIA
Strada Provinciale 27, Ceglie Messapica, Brindisi, Puglia, Italia
Vendita
€190,000
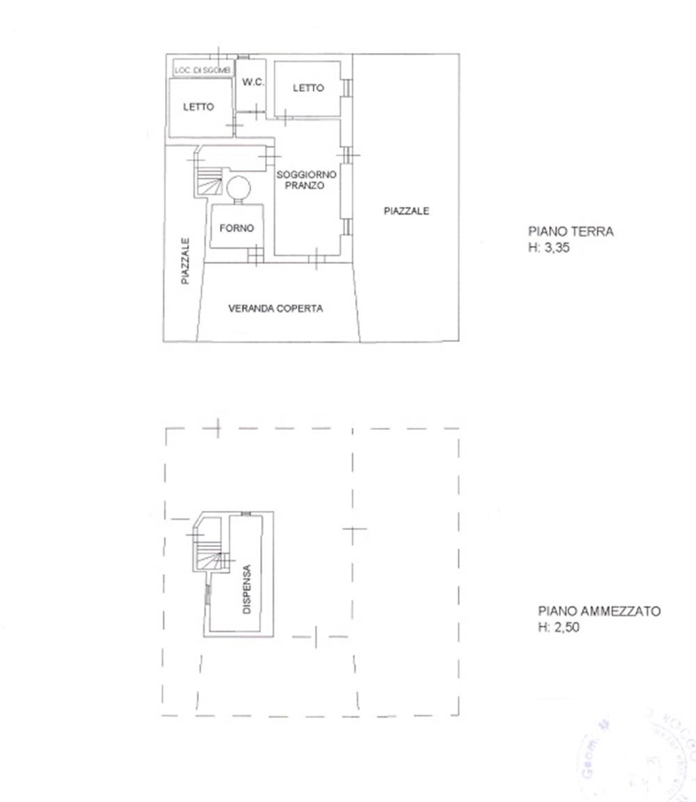
R 334 – Villa con terreno a Ceglie
Villa tra le campagne di Ceglie e Ostuni in zona tranquilla.
La casa esternamente è rifinita in pietra, con veranda coperta ad archi, con barbecue, forno a legna.
La superficie interna è di circa mq 100 e si divide in: ingresso in zona living con ampie volte e dettagli in pietra. Sul lato sinistro, cucinino. Sul lato destro zona notte con due camere matrimoniali e un bagno con doccia. Una scala in pietra conduce al primo piano con ulteriore camera ad uso deposito e accesso al terrazzo.
Il Terreno di 1 ettaro circa, ricco di vegetazione tra cui: numerosi alberi da frutto, ulivi, grandi pini ecc.
Camere da letto: 2
Bagno: 1
Ceglie Messapica Contrada RecuperoIn posizione strategica tra Ostuni, Martina…
€220,000
Ceglie Messapica – SP23Progetto di ampliamento e piscina (rilasciato)Proponiamo in…
€190,000
Questo sito Web utilizza i cookie per migliorare la tua esperienza. Daremo per scontato che ti stia bene, ma puoi annullare l'iscrizione se lo desideri.
AccettaRifiutaImpostazioni
| Cookie | Durata | Descrizione |
|---|---|---|
| cookielawinfo-checkbox-necessary | 11 months | This cookie is set by GDPR Cookie Consent plugin. The cookies is used to store the user consent for the cookies in the category "Necessary". |
| cookielawinfo-checkbox-others | 11 months | This cookie is set by GDPR Cookie Consent plugin. The cookie is used to store the user consent for the cookies in the category "Other. |
| cookielawinfo-checkbox-performance | 11 months | This cookie is set by GDPR Cookie Consent plugin. The cookie is used to store the user consent for the cookies in the category "Performance". |